Whatsapp
home   /   imóveis   /

Venda - Casas - 3 dormitórios - São Bento - Lajeado - RS

São Bento, Lajeado - RS

Galeria de imagens

Voltar

Valor deVenda

R$ 499.000,00

Resumo do imóvel ANTV5789

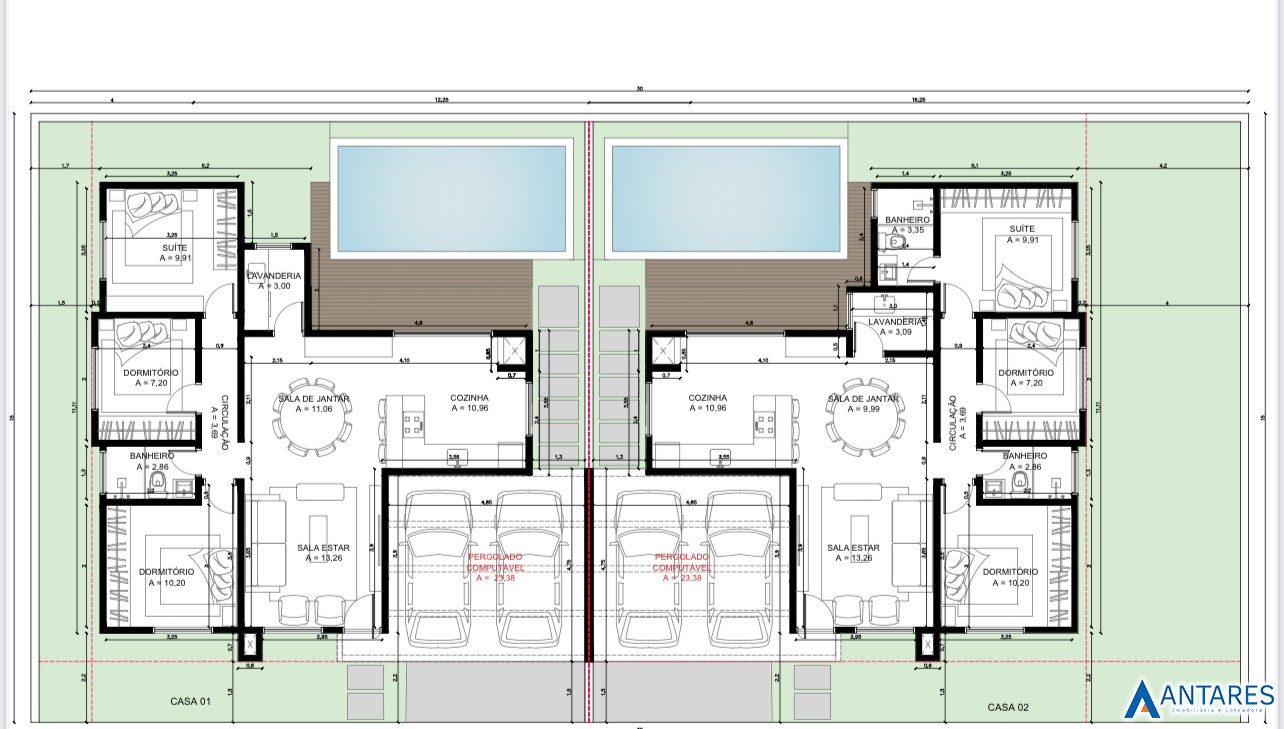
Descrição › CASA 01- Loteamento Monte Santo
1. Descrição Geral
Casa individual com garagem, composta por:
● 3 dormitórios sendo 1 suite (casa 2)
● Sala de estar
● Sala de jantar
● Churrasqueira (interna)
● Cozinha
● Lavanderia (interna)
● 1 banheiro social
● 02 vaga de garagem lado a lado
● Pé direito alto
● Amplo pátio
● Espera para água quente
● Esperas de ar condicionado
● Esperas de Gás
● Teto com gesso liso

2. Acabamentos Internos
● Piso: Porcelanato em tons neutros.
● Laminado nos quartos.
● Azulejo: Aplicado no banheiro, cozinha e lavanderia.
● Portas: Internas Branca de Madeira
● Paredes internas: Massa corrida com pintura acetinada.
● Banheiro: Nicho no box e louças brancas (vaso sanitário).

3. Acabamentos Externos
● Esquadrias: Alumínio, conforme imagem em projeto.
● Pintura externa: Tinta emborrachada, resistente ao clima.
● Fachada: Reboco riscado.
● Calçada perimetral de 50 cm.

4. Áreas Externas
● Frente e Fundos: Gramado.
● Trilhos: Rampa para o carro e pisantes até a entrada.

5. Telhado
● Telha de aluzinco 0,50 mm.

6. Fundação e Estrutura
● Fundação: Pedra de areia.
● Paredes: Alvenaria com bloco cerâmico estrutural.

7. Prazo de Entrega
● Previsão de entrega: Outubro/2026
O prazo poderá ser prorrogado em caso de condições climáticas adversas.

    • Cód. do Imóvel › ANTV5789

    • Finalidade › Venda

    • Tipo › Casas

    • Sit. do Imóvel › Em Construção

    • Mobiliado › Não

    • Qtd. banheiro › 1

    • Dormitórios › 3, sendo 1 suíte

    • Qtd. Vagas Estac. › 2

    • Área de Serviço(s) › 1

    • Área Total › 106,99m²

Características do imóvel

    • Água Quente Espera

    • Área Serviço

    • Banheiro Social

    • Massa Corrida

    • Pátio

    • Rebaixo em Gesso

    • Sala de Estar

    • Sala de Jantar

    • Split Espera

    • Suíte

    • Piso Laminado

    • Piso Porcelanato

Contato da imobiliária

Antares Imobiliária

Vendas › (51) 99527.5812 WhatsApp(51) 99527.5812 E-mail[email protected]

Tenho interesse

Imóveis relacionados

Montanha Lajeado

2 Dorm. | 1 Vaga(s)

Tot. 65,00m²  

Venda

R$ 530.000,00

Moinhos D Água Lajeado

5 Dorm. | 1 Vaga(s)

Tot. 371,25m²   Priv. 77,36m²

Venda

R$ 480.000,00

Universitário Lajeado

2 Dorm. | 2 Vaga(s)

Tot. 70,00m²  

Venda

R$ 499.000,00

Montanha Lajeado

3 Dorm.

Tot. 168,81m²  

Venda

R$ 500.000,00

IMPORTANTE: As informações exibidas nesta página fazem parte de um anúncio publicitário, e podem ser alteradas, inclusive quanto ao valor, sem aviso prévio.
IMPORTANTE: Por favor, entre em contato conosco para obter informações mais detalhadas.